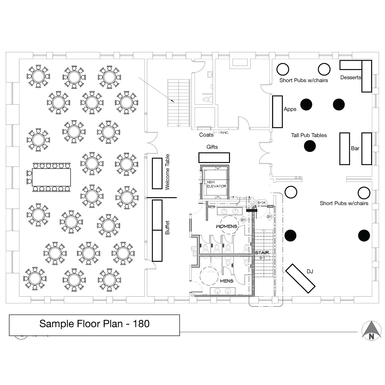
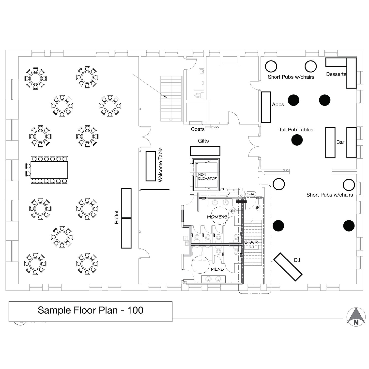
Sample Floor Plans
Reception 180
After the ceremony, while your guests are enjoying cocktails in the back ballrooms and you are off taking photos, our staff gets to work and flips the main ballroom from the ceremony to dinner. We do this flip in an hour or less and then we give the room to your caterers to place the finishing touches.
We take care of all the decorating for you, so you don’t have to stress about one thing on your day and can truly enjoy the moments after your ceremony with your family and friends.
Wedding 50 or Less
A half hour before dinner is served, we stop serving drinks at the bar and have people get seated for dinner. This allows for enough time to get everyone to their seats, while you get ready to make your official entrance as a newly married couple.
After dinner is served, the bar will reopen until last call at 11:45pm.
 
             
             
             
            